×
Premier coup d'oeil

Descriptif

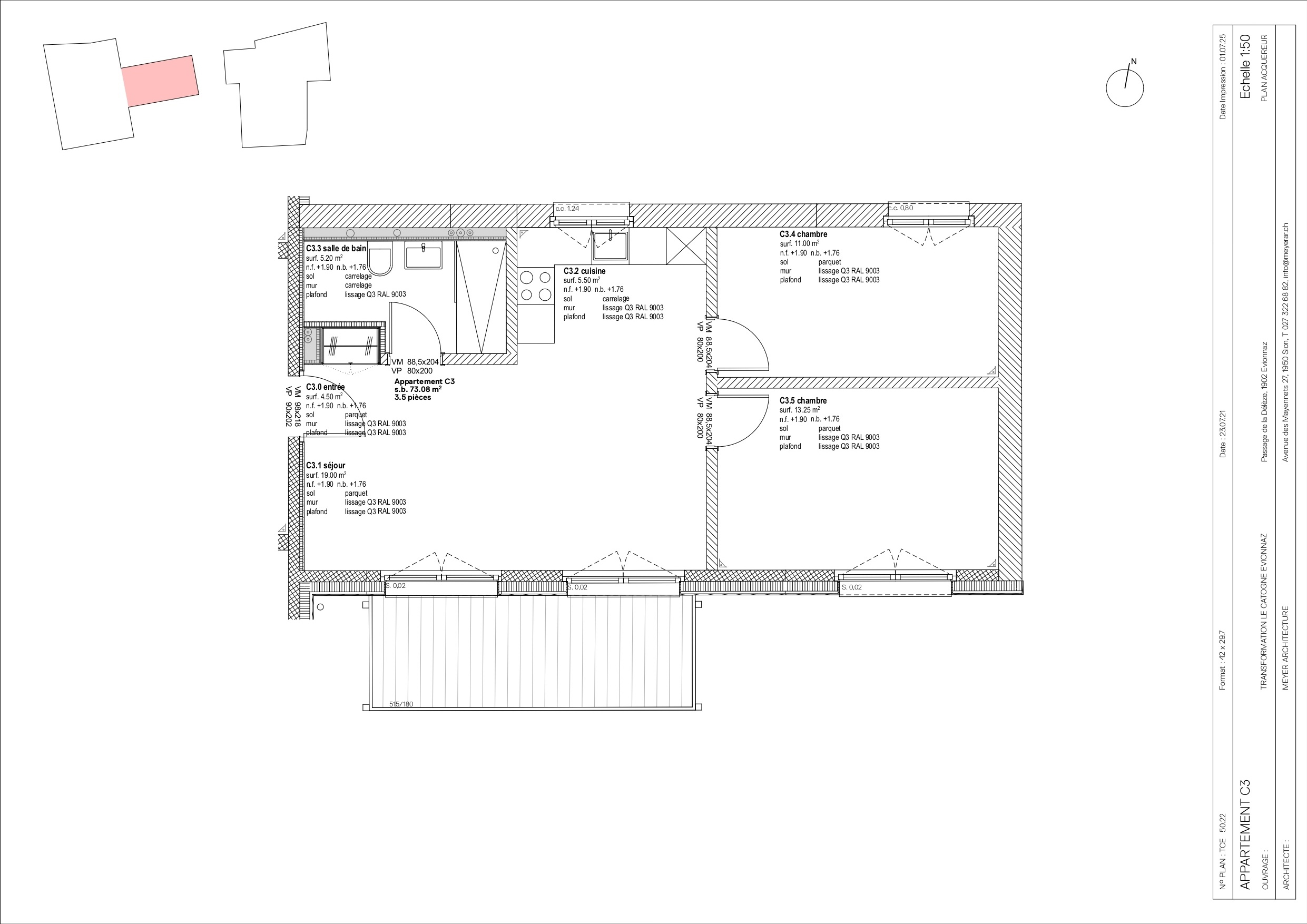
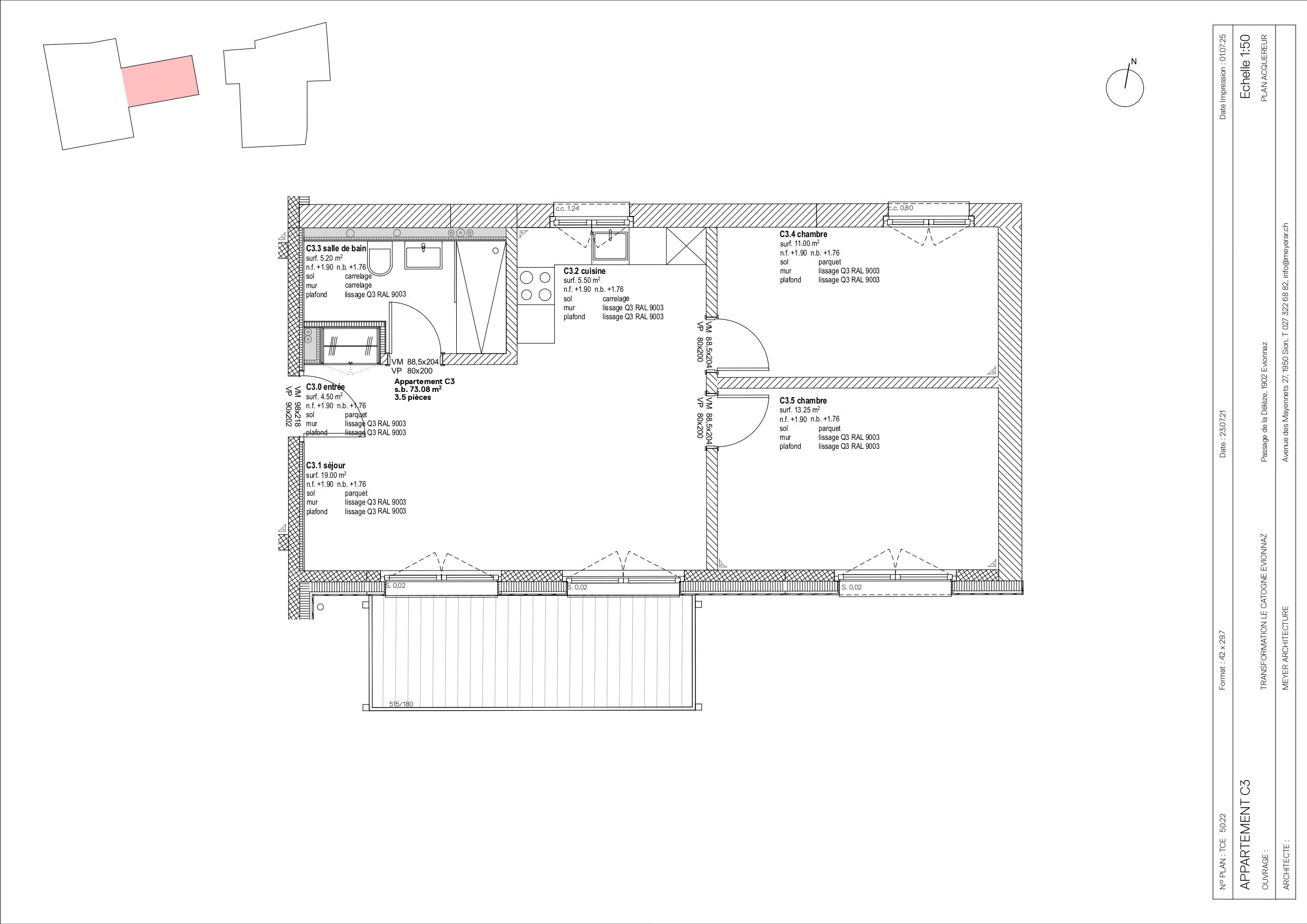
Au sein du bâtiment C du projet de transformation « Le Catogne », l’appartement C3 séduit par ses 73 m² habilement conçus et son atmosphère chaleureuse. Ce projet architectural unique met en valeur le patrimoine d’Evionnaz, en réhabilitant des bâtiments existants avec soin tout en y intégrant les standards de confort et de durabilité d’aujourd’hui. Résider dans cet appartement, c’est profiter d’un logement moderne tout en s’inscrivant dans un cadre villageois authentique et paisible.

Des espaces harmonieux et lumineux

L’appartement s’ouvre sur une entrée fonctionnelle qui distribue avec fluidité les différentes pièces. Le séjour constitue le cœur de l’habitation : spacieux, lumineux et convivial, il offre un espace idéal pour accueillir famille et amis ou tout simplement se détendre. Sa disposition facilite l’aménagement et valorise la lumière naturelle.

Attenante au séjour, la cuisine a été pensée pour conjuguer praticité et convivialité. Sa taille permet d’intégrer aisément les équipements modernes nécessaires à la vie quotidienne, tout en laissant la liberté aux futurs propriétaires de personnaliser l’espace selon leurs envies.

L'appartement accueille deux chambres confortables : une chambre principale de 13,25 m², parfaite pour créer un cocon intime et reposant, et une seconde chambre de 11 m², qui pourra être aménagée en chambre d’enfant, bureau ou espace polyvalent selon les besoins. Une salle de bain complète l’ensemble avec un agencement selon vos goûts.

Des espaces communs pratiques

Les futurs habitants profiteront également d’espaces communs, comprenant des caves individuelles, un local à vélos ainsi que le local technique. Ces aménagements apportent une réelle valeur ajoutée en termes de praticité et de confort d’utilisation au quotidien. Un cabinet médical sera installé au rez-de-chaussée, renforçant l’attrait du bâtiment par la proximité immédiate d’un service essentiel.

Stationnement et mobilité douce

Cet appartement ne bénéficie pas de place de parking, toutefois plusieurs places sont  disponibles à la vente sur la parcelle voisine, spécialement réservées aux habitants du bâtiment.

En résumé

L’appartement C3 représente bien plus qu’un simple logement : il s’agit d’un cadre de vie harmonieux, pensé pour s’adapter aux besoins actuels et futurs. Avec ses espaces optimisés, ses prestations de qualité, ses atouts pratiques et son emplacement privilégié, il constitue une opportunité rare pour les personnes à la recherche d’un appartement moderne, confortable et durable au cœur du Valais.

Ne manquez pas cette occasion unique et contactez-nous dès aujourd’hui pour plus d’informations. Nous serons ravis de répondre à vos questions et de vous accompagner dans la découverte de ce bien d’exception.

Situation

Située au cœur du Chablais valaisan, la commune d’Evionnaz bénéficie d’une situation privilégiée entre plaine et montagne. Entourée de paysages naturels remarquables, des forêts aux Dents-du-Midi en passant par le lac de Salanfe, Evionnaz séduit par sa qualité de vie, son dynamisme local et sa proximité avec les commerces, les écoles et les services. Un lieu idéal pour concilier sérénité et accessibilité.

Accès

Evionnaz bénéficie d’une situation géographique idéale et parfaitement connectée. La  commune est desservie par une gare CFF et en voiture, l’accès est rapide grâce à la  proximité de l’autoroute A9. Cette accessibilité optimale fait d’Evionnaz un point de départ privilégié, à la fois pour les déplacements professionnels et pour profiter des stations de ski et des nombreuses activités de loisirs de la région. 

Commerces

Evionnaz offre à ses habitants une gamme de commerces et de services de proximité qui  facilitent le quotidien. Pour des besoins plus spécifiques, les villes de Martigny et  Monthey, situées à moins de 15 minutes, complètent cette offre avec une grande variété de magasins, supermarchés et centres commerciaux. Ainsi, vivre à Evionnaz permet de profiter à la fois de la tranquillité d’un village à taille humaine et de l’accessibilité rapide à toutes les infrastructures urbaines.

Transports

La commune d’Evionnaz est très bien desservie par les transports publics. Sa gare CFF  permet de rejoindre rapidement Saint-Maurice, Martigny ou Monthey grâce à des liaisons  régulières tout au long de la journée. Les correspondances facilitent aussi l’accès à Lausanne, au Chablais vaudois ou encore au Valais central en moins d’une heure. Des lignes de bus complètent le réseau, assurant une mobilité optimale pour les habitants sans dépendre de la voiture.

Loisirs

Evionnaz offre une large palette de loisirs pour toute la famille. La commune est connue  pour son Labyrinthe Aventure, le plus grand labyrinthe permanent du monde, qui attire  petits et grands dans un univers ludique et unique. Les amateurs de nature profitent d’un  environnement exceptionnel, randonnées vers le lac de Salanfe, balades au pied des  Dents-du-Midi, VTT et promenades en forêt. Grâce à sa situation, Evionnaz permet aussi  de rejoindre rapidement les stations de ski valaisannes et les rives du Léman, offrant ainsi  un équilibre parfait entre détente, sport et culture.

Formulaire de contact

facultatif